Sauna - à vendre - 7800 Ath - Ă€ partir de 499 000 €  Hors frais

Sauna - à vendre - 7800 Ath
3 225 m² 4 PEB : App

Description

🔥 À ne pas manquer ! Bien d'exception à vendre à Ath / Maffle 🔥

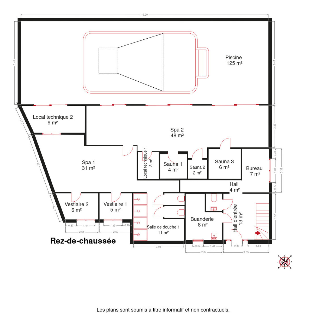
Opportunité rare : centre de bien-être entièrement équipé avec piscine intérieure chauffée, saunas, hammam, étangs privés, avec possibilité d'acquérir un appartement provatif 2 chambres !

💎 Idéal pour une profession libérale : thérapeute, kiné, esthéticien(ne), coach, ou tout projet lié au bien-être.
💼 Nombreuses possibilités d’aménagement — activité pro + logement sur place !


🧖‍♀️ Espace bien-être complet :

  • Piscine intĂ©rieure chauffĂ©e (±124 m²) avec toit ouvrant

  • 2 saunas (sec & infrarouge – 4 pers.)

  • Hammam (cabine vapeur – 4 pers.)

  • Espaces dĂ©tente, accueil, vestiaires, douches, sanitaires, locaux techniques...

  • Installation prĂŞte Ă  l’emploi !


🏡 Partie habitation privative à l'étage FOA 200.000€ en Option :

  • Salon, salle Ă  manger, cuisine

  • 2 chambres

  • 2 salles de douche


🌿 Extérieurs :

  • 2 Ă©tangs privĂ©s offrant un cadre apaisant et de multiples possibilitĂ©s d’amĂ©nagement paysager ou relaxation en plein air.


✅ En résumé :

  • PEB A++ (≤120 kWh/m².an) – conforme !

  • ÉlectricitĂ© conforme

  • Faire offre Ă  partir de 499.000 € (pour le SPA sans l'appartement)

  • 📌 Attention : L’agence n’a pas le pouvoir de vente ; le propriĂ©taire se rĂ©serve le droit d’accepter ou non les offres.

🔎 Infos et visites : srl.ifm@outlook.be ou 0471/74.79.69

Documents

Général

Référence 7244185
Catégorie Sauna
Garage Non
Surface habitable 225 m²
Disponibilité à l'acte

Nom, catégorie & situation

Nombre d'étages 2

Bâtiment

Parking extérieur Oui
Nombre de sdd 3
Parking(s) extérieur (nombre) 4

En chiffres

Surface bâtie (surf. bât. princ.) 99
Nbre de toilette(s) (nombre) 3
Largeur de façade 13
Profondeur terrain 109
Nbre de terrasse(s) (nombre) 1
Cuisine (surface) 12.82 m²

Equipement de base

Cuisine Oui
Ascenseur Non
Double vitrage Oui
Type de cuisine amer. équipée
Videophone Oui

Divers

Buanderie Oui
Bureau Oui

À proximité

Transports en commun (distance (m)) 500
Transports en commun Oui
Autoroute Oui
Autoroute (distance (m)) 6200

Equipement extérieur

Piscine Oui

Charges & Rendement

Sous régime TVA Oui

Raccordements

Égouts Oui
Électricité Oui
Gaz Oui
Câbles téléphoniques Oui
Eau Oui

Équipements techniques

Centrale tél. Oui
Châssis (type) pvc

Spécificités terrain

Type d'environnement calme
Exposition de la façade avant nord-est

Type de matériau & évaluation

Type de revêtement de sol carrelages

Certificats énergétiques

Label PEB (classe) App
E total (Kwh/an) -9919
PEB code unique 20250910025588
PEB valide jusqu'au (datetime) 10/09/2035
Date du PEB (datetime) 10/09/2025
Prendre contact pour le bien : 7244185

* Champs obligatoires

Sélection des points d'intérêts

Biens similaires

Préférences pour les cookies

La protection de vos données personnelles est importante pour nous. C’est pourquoi nous détaillons ci-dessous les différents services et fonctionnalités du site qui utilisent des cookies et nous vous laissons décider des cookies que vous souhaitez autoriser ou refuser.

Veuillez cependant noter que si vous bloquez certains types de cookies, cela pourrait impacter votre expérience de navigation sur notre site ainsi que les fonctionnalités disponibles.

Nous utilisons des cookies fonctionnels obligatoires pour assurer le bon fonctionnement du site. Ils sont, par exemple, nécessaires pour retrouver le résultat d’une recherche ou enregistrer le choix de la langue.

Certaines fonctionnalités, comme l’affichage de vidéos ou de cartes géographiques, sont assurées via des composants externes développés par des partenaires comme YouTube ou Google. Certains composants utilisent des cookies qui sont susceptibles de permettre à ces tiers de suivre le comportement des internautes afin, par exemple, de réaliser du ciblage publicitaire. L’activation de ces fonctionnalités et des cookies associés est donc soumis à votre consentement.